ID CP3023032

APARTAMENT 3 CAMERE , PIATA RAHOVEI

ID CP3023032

105,000 €

Apartament cu 3 camere de vânzare
Sud, Sibiu
60 mp
1980

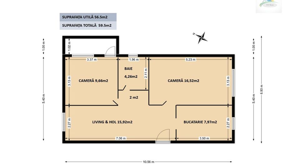
Apartament decomandat cu 3 camere, situat in zona Piata Rahovei din Sibiu, cu o suprafața utila de 60 mp, amplasat la parterul unui bloc cu 4 etaje. Locuinta beneficiaza de izolatie atat la interior, cat si la exterior, oferind un confort termic sporit pe tot parcursul anului. De asemenea, apartamentul dispune de pivnita proprie, ideala pentru depozitare suplimentara.

Configuratia este una functionala si moderna: doua dormitoare, hol, living cu bucatarie openspace, baie cu geam pentru ventilatie naturala si un balcon de 4 mp. Compartimentarea decomandata asigura intimitate si un flux optim intre incaperi. Dispune de centrala proprie.

Apartamentul necesita renovare, dar acest aspect poate reprezenta un avantaj important pentru viitorul proprietar, care are astfel posibilitatea de a-l amenaja complet dupa propriile gusturi si nevoi.

Zona Piata Rahovei este apreciata pentru accesul facil la magazine, scoli, transport public si alte puncte de interes, fiind o alegere excelenta pentru familii, investitori sau persoane care cauta o locuinta practica si bine pozitionata.

Citește mai mult

  • Tip apartament
    Apartament
  • Compartimentare
    Decomandat
  • Număr camere
    3
  • Dormitoare
    2
  • Număr bucătării
    1
  • Număr băi
    1
  • Geam la baie
    Da
  • Etaj
    Parter
  • Suprafață utilă
    60 mp
  • Suprafață construită
    74 mp
  • Suprafață totală
    70 mp
  • Disponibilitate
    Imediat
  • Orientare
    Sud
  • Stare interior
    Necesită renovare
  • Anul finisării
    1980
  • Număr balcoane
    1
  • Imobil
    Bloc de apart.
  • Stadiu construcție
    Finisat
  • An construcție
    1980
  • Tip construcție
    Cărămidă
  • Număr etaje clădire
    4
  • Număr subsoluri
    1

Facilități

Acces pentru persoane cu dizabilități
Acoperiș
Apă
Apometre
Aragaz
Bucătărie parțial utilată
Cadă
Canalizare
CATV
Contor căldură
Contor electric
Contor gaz
Curent
Debara
Ferestre lemn
Gaz
Geamuri termopan
Iluminat stradal
Internet
Izolație exterioară
Izolație interioară
Mijloace de transport în comun
Mobilat parțial
Parchet
Pivniță
Străzi asfaltate
Telefon
Ușă intrare metal
Uși interior lemn
Var
AURA TATU - YST Home
AURA TATU
Consultant imobiliar

0749499339


Solicită chiar acum o vizionare
Nume
Telefon
Email
Sună acum Solicită vizionare
Necesare:

Site-ul nu poate funcționa corect fără aceste cookie-uri. Vezi cookie-urile

Statistică:

Strângem statistici anonime despre voi, vizitatorii unici, pentru a vă îmbunătăți experiența dumneavoastră. Vezi cookie-urile

Marketing:

Pentru a ne promova mai eficient serviciile noastre, folosim cookies pentru a vă identifica și a vă oferi proprietăți și servicii personalizate. Vezi cookie-urile

Acest site folosește cookies, află detalii. Alege ce tipuri de cookies dorești să permitem: